Doppelhaus Goldach
- Home
- Doppelhaus Goldach
- D+E
- Bilder
- Grundrisse
- Baufortschritt
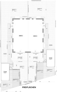
Haus 1: VERKAUFT
- Grundstückfläche - 289 m²
- Wohnfläche - 143 m²
- Nutzfläche - 41 m²
- Zimmer - 5
- Bad - 1
- Gästetoilette - 1
- Einzelgarage -1
- Stellplatz -1
Fertigstellung: Herbst 2023
Haus 2: VERKAUFT
- Grundstückfläche - 262 m²
- Wohnfläche - 143 m²
- Nutzfläche - 41 m²
- Zimmer - 5
- Bad - 1
- Gästetoilette - 1
- Einzelgarage -1
- Stellplatz -1
Fertigstellung: Herbst 2023
D + E Wohnbau GmbH
Erich-Zeitler-Str. 1, 85737 Ismaning























